Design Rumah tinggal, Ruko dan bangunan lainnya blogs : maygunrifanto.blogspot.com Whatsapp : 081 1925 5680 email : maygunrifanto@gmail.com instagram : maygunrifanto theme song : cuk mak ilang ( lagu daerah palembang - sumatera selatan )
Welkam
Selamat Datang di maygunrifanto.blogspot.com
Menyajikan Metode kerja Bangunan- Gambar kerja (Shop Drawing)- Menerima Pesanan Gambar
Kamis, 11 Oktober 2018
MY-G design - Rumah Tinggal 13x20m - Palembang
Design Rumah tinggal, Ruko dan bangunan lainnya blogs : maygunrifanto.blogspot.com Whatsapp : 081 1925 5680 email : maygunrifanto@gmail.com instagram : maygunrifanto theme song : cuk mak ilang ( lagu daerah palembang - sumatera selatan )
MY-G design - Rumah minimalis 11x17m - Jakarta
Design Rumah tinggal, Ruko dan bangunan lainnya blogs : maygunrifanto.blogspot.com Whatsapp : 081 1925 5680 email : maygunrifanto@gmail.com instagram : maygunrifanto theme song : cublak cublak suweng ( lagu daerah jawa tengah )
MY-G design - Rumah Tinggal 10x20m - Bekasi
Design Rumah tinggal, Ruko dan bangunan lainnya blogs : maygunrifanto.blogspot.com Whatsapp : 081 1925 5680 email : maygunrifanto@gmail.com instagram : maygunrifanto theme song : manuk dadali ( lagu daerah jawa barat )
Kamis, 22 Maret 2018
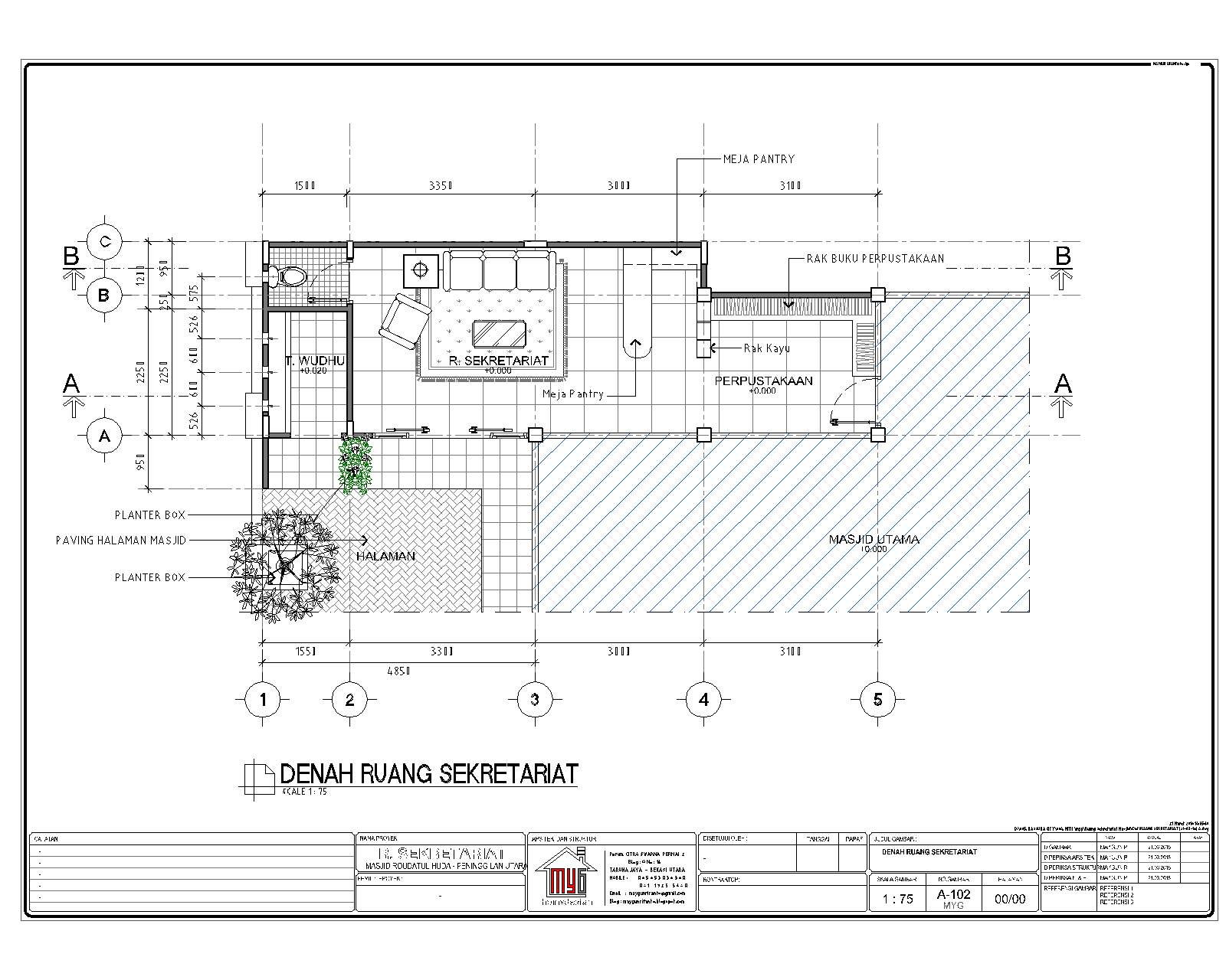
Ruang Sekretariat Masjid
Proyek : Ruang Sekretariat Masjid
Alamat : Cileduk - tangerangGambar dan design : maygun rifanto
telp / Whatsapp : 081 1925 5680
Selasa, 30 Januari 2018
Rumah sabilillah - Tarumajaya - Bekasi Utara - Tahap 1
Proyek : Rumah Sabilillah Tahap 1
Alamat : Desa Segara jaya - Tarumajaya - Bekasi utara
Gambar dan Design : maygunrifanto
Telp : 081 1925 5680
Majelis taklim - Sunterjaya - Jakarta Utara
Proyek : Majelis Taklim
alamat : Sunter jaya - Tanjung priuk - Jakarta Utara
gambar dan design : maygun rifanto
telp : 081 1925 5680
Masjid - Patrol - Indramayu
proyek : Masjid
Alamat : desa patrol - Indramayu
Gambar dan Design : Maygun rifanto
telp : 081 1925 5680
Langganan:
Komentar (Atom)







































